Brandywine Dr./Lot #1, Hudson

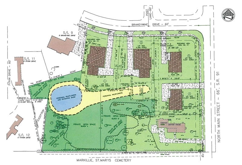
Welcome to Lighton on Main. A rare opportunity to build a home in Historic Hudson, Ohio. Located north of Historic Downtown Hudson, close to shopping, schools, churches, restaurants and all the activities that Hudson has to offer. This development will afford the owner an opportunity to build their own home with a builder of their choice. Great opportunity to downsize and stay in the community. Historical property with adjacent private open space. Plat map available. Builders welcome. No City of Hudson Growth Management permit is required. The Boundary, Topographic and tree survey are included in the price of the lot.

Property Details

[property_details details=”1″]

Property Photos

[contact-form 2 “Property Listing”]
[contact-form 2 “Property Listing”]

Property Map


View Larger Map

——————————————————————————–

Comments are closed